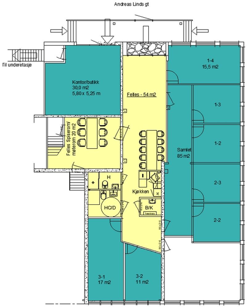
Vi følgende lokaler ledig i hovedetasje mot Andreas Linds gt:
Se gjerne BILDER HER
2 kontor 11/17 m2, 5 cellekontor 85 m2, Lokale for butikk, utstilling eller kontor 30 m2

Lokalene har adkomst fra parkeringsplass Andreas Linds gt. Det er utsikt mot Equinor-bygget i øst. Lokalene leies ut samlet eller hver for seg. Avdelingen med 5 cellekontor har egen fellesgang for eksempelvis kontormaskoner, printere, m.m.
I kontorfellesskapet er det tilgang til møterom, felles spiserom, kjøkkenkrok, toaletter med dusj. Lokalene har balansert ventilasjon. Ved behov kan adgang til stor garderobe i underetasje avtales.
Like ved inngangen til kontorene har vi også et lokale på 30 m2 som kan benyttes til butikk, utstillingslokale eller som kontor. Lokalet kan etter avtale ha tilgang til kontorfellesskapet som nevnt over. For de som er lokalkjent; Harstad Bryggeri, som nå holder til i underetasjen, hadde utsalg her tidligere. Øvrig leietakere i fellesskapet er Heis Nor.
Det er innlagt Telenor Fiber i bygget som leietakere kan koble seg til.
Det er avsatt totalt 8 parkeringsplasser på gatenivå rett utenfor bygget.
Lokalene ligger attraktivt til i Harstads nye bydel med Equinor, nye videregående skole, nytt hotell og kanskje kino og bibliotek.
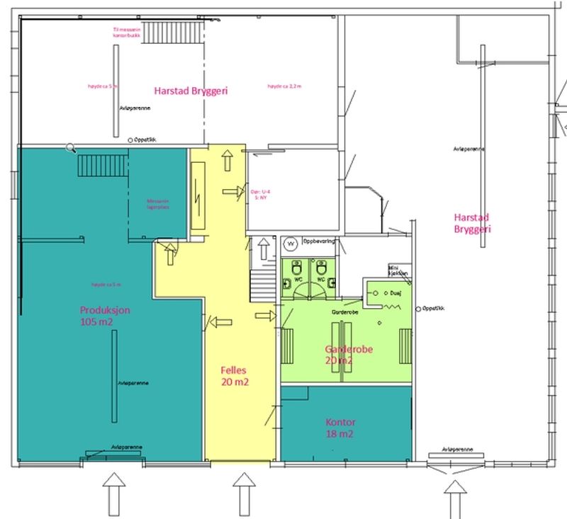
Vi følgende lokaler ledig i underetasje mot Klubbveien:
Se gjerne BILDER HER
Lokale for verksted, småindustri eller lager, ca 105 m2, takhøyde 5 m
1 kontor ca 20 m2

Lokalene har god adkomst fra Klubbveien og har egen kjøreport samt port i fellesareal. Innerst i lokalet er det bygget en messanin som egner seg utmerket til lagerplass. Det er utsikt mot Equinor-bygget i øst. Verkstedlokalet og kontoret leies ut samlet eller hver for seg.
Lokalene har innlagt både 230 og 400 V strømtilførsel med meget god kapasitet. Det er også rikelig vannforsyning og avløpsrenne sentralt i lokalet og ved porten. Lokalene vil derfor egne seg meget godt til verksted og småindustri og/eller lager.
Det er tilgang til felles garderobe med to toalett, vaskerenne og dusj. Det kan også arrangeres tilgang til fellesarealer i hovedetasje (etasjen over).
Øvrig leietaker i etasjen er Harstad Bryggeri.
Det er innlagt Telenor Fiber i bygget som leietakere kan koble seg til.
Det medfølger parkeringsplasser på gatenivå rett utenfor bygget.
Lokalene ligger attraktivt til i Harstads nye bydel med Equinor, nye videregående skole, nytt hotell og kanskje kino og bibliotek.